Mehrgenerationen Singlepark Winterbach
Der Verkauf hat begonnen!
Sichern Sie sich jetzt Ihr neues Zuhause – das Angebot ist limitiert!
Das Angebot
10 Stück Midi One mit je 52 m² auf Grundstücken von 100 m² bis 240 m².
4 Stück Tiny-Long mit je 27 m² auf Grundstücksgrößen von 127 m² bis 166 m².
1 Stück Tiny-Short mit 13 m² bevorzugt zur Vorhaltung einer Service-Station für soziale Dienste.
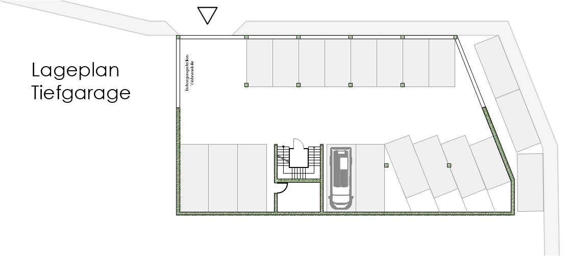
3 Stück Wohnmobil-Stellplätze bis 6,0 m Länge in der Tiefgarage.
5 Stück Wohnmobil-Stellplätze bis 7,0 m Länge in der Tiefgarage.
9 Stück PKW-Stellplätze in der Tiefgarage.
3 Stück PKW-Stellplätze im Freien.
Ein KfW-Standard der Häuser ist bis KfW 40 mit überschaubarem Mehraufwand möglich.
Lageplan Park und Tiefgarage
Kontaktieren Sie unser Vertriebsbüro und fordern Sie Ihr persönliches Angebot an!
E-Mail: service@tiny-midi-house.de
Tel.: 0 68 54 / 9 00 90 50
Das Wohnkonzept
Nachhaltig leben im eigenen Tiny House
- Kleines Haus, kleines Grundstück, geringe Betriebskosten, geringe Unterhaltungskosten.
- Grundbuch-Eigentum, großer Freiraum, kein Gemeinschaftszwang,
autarke Lebensführung. - Leben reduziert auf das Wesentliche.
Nachstehende Leistungen sind enthalten
Tiny- oder Midi- Haus mit Grundstück
Ausführung wie Baubeschreibung WST Tiny- + Midi- Häuser 002/01.06-2025
I. Baugrundstück
II. Haus in Ausführung Modul-Holzrahmenbau, GEG-Standard (Gebäudeenergiegesetz) inklusiv Bauantrag
Baugenehmigungsgebühr, Statik, Wärmeschutznachweis.
III. Terrasse in den Abmessungen 3 mal 4 Meter in Douglasie
IV. Eingangspodest in der Ausführung Douglasie mit 3 Stufen
V. Fundamentierung.
VI. Innere Erschließung.
VII. Eingezäunte Parkanlage, Einfriedung mit Maschendraht- oder Quadratstab Optik.
VIII. Hausanschlüsse Wasser, Abwasser und Strom; die Gebühren der Versorgungsunternehmen sind nicht enthalten.
IX. Außenanlagen mit gepflasterter Zuwegung und Raseneinsaat der Freiflächen.
X. Schallschutz zur Winterbacher Straße.
XI. Verkehrswege im Gelände.
Tiefgarage
8 Stück Wohnmobilstellplätzen, 2,90 m Einfahrtshöhe
(3 Stück WoMo-Stellplätzte bis 6,0 m Länge, 5 Stck WoMo-Stellplätze bis 7,00 m Länge).
Zusätzliche Abstellflächen, zentrale Grauwasser- und Fäkalien-Entsorgung, Frischwasser-Zapfstelle.
Elt-Ladestation für jeden WoMo-Stellplatz.
9 Stück PKW-Stellplätze, auf Wunsch mit Elt.-Auto-Ladeinfrastruktur.
Zentrales Treppenhaus mit Fahrstuhl zum Erreichen der Tiny-Haus-Wohnebene.
Barrierefreier Zugang zu den Tiny-Häusern aus der Tiefgarage.
Zuwegung
Die Straße, der Wendehammer und die Zufahrt von der Mecherstraße (Parzelle 17) werden eine öffentliche Gemeindestraße der Kreisstadt St Wendel. Die Haltebuchten sind Kurzzeit-Parkern vorbehalten. Das Abstellen der PKW und der Wohnmobile erfolgt im Interesse einer Verkehrsberuhigung des Wohnparks in der Tiefgarage.
Parzelle 16 ist eine Gemeinschaftsparzelle der Wohnanlage. Die Parzelle dient der fußläufigen Zuwegung zum Treppenhaus und dem Personen-Aufzug in die Tiefgarage.
Die Häuser, die Tiefgarage und die Außenanlagen werden bezugsfertig hergestellt und übergeben.
Grundriss Midi One – Größe 52m²
Midi One – zwei von 6 Grundriss – Varianten
Grundriss Tiny Long – Größe 27 m²
